Features of Property
Land with Building Permit in El Pilar de la Mola, Formentera
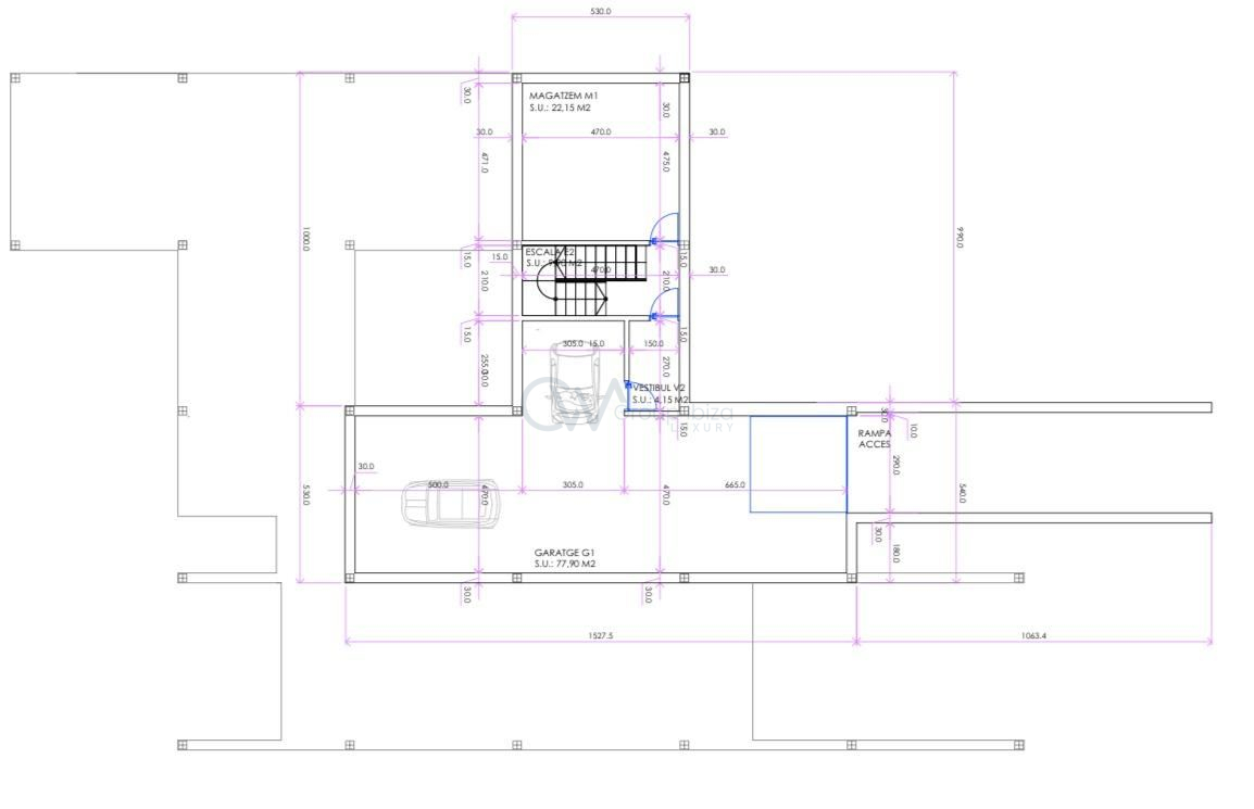
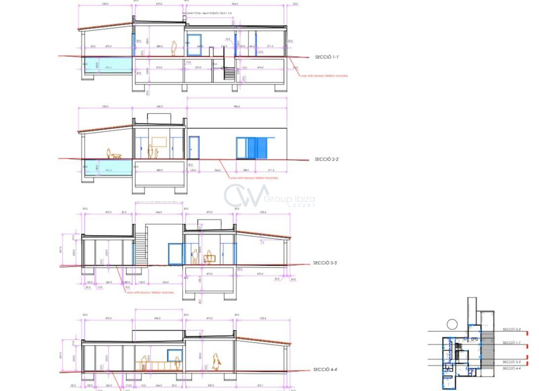
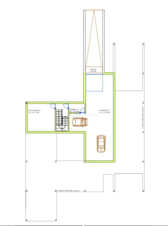
Located in the tranquil and natural surroundings of El Pilar de la Mola, this exceptional 15,000 m² plot offers a rare opportunity to build your dream home in one of Formentera’s most peaceful and authentic areas. With a granted building permit and a total allowed construction of 433 m², the property combines exclusivity, privacy, and a prime location near the beautiful Es Caló beach.
The project allows for a modern, flexible home design that can be customized to your personal preferences. Spacious interiors, open living areas, and natural integration with the landscape make this the ideal setting for a home that reflects both comfort and elegance. Surrounded by lush vegetation and protected natural scenery, this plot offers the perfect blend of serenity and connection to nature.
Its privileged location near Es Caló — known for its bohemian charm, crystal-clear waters, and fine white sand — ensures easy access to some of the island’s most picturesque coastal spots. Whether used as a permanent residence or a summer retreat, this property offers the ideal escape for those who value peace and exclusivity.
This is a unique investment opportunity in one of Formentera’s most sought-after areas, where construction rights and scenic surroundings come together to create the perfect foundation for a bespoke island residence.
More Land for sale in Ibiza | More houses for sale in La Mola | All Ibiza property for sale























